Woonoppervlakte
Circa 151 m²
Perceeloppervlakte
Circa 325 m²
Bouwjaar
Gebouwd in 2003
Aantal kamers
5 kamers (4 slaapkamers)

Alida Buitendijk erf 5

1705 NH, Heerhugowaard (Noord-Holland)

RUIME HALFVRIJSTAANDE WONING MET GARAGE, 4 SLAAPKAMERS EN GROTE TUIN!

Welkom bij deze ROYALE HALFVRIJSTAANDE WONING aan de Alida Buitendijk erf 5 in Heerhugowaard. Een heerlijk ruim gezinshuis uit 2003 met een woonoppervlak van 151 m², een sfeervolle woonkamer, ruime woonkeuken en boven vier grote slaapkamers. De woning is uitstekend onderhouden, heeft energielabel A, een grote zonnige tuin én een garage. Tel daarbij de rustige, autoluwe ligging in een kindvriendelijke wijk op en je hebt hier de perfecte gezinswoning gevonden!

LOCATIE EN OMGEVING:
De woning is gelegen in een rustige en groene woonwijk Huygenhoek, waar kinderen veilig kunnen buitenspelen. Voorzieningen als basisscholen, supermarkten en sportfaciliteiten liggen binnen handbereik, net als speeltuinen en recreatiemogelijkheden. De wijk is autoluw en biedt volop rust en privacy, terwijl je toch snel bij de uitvalswegen richting Alkmaar, Hoorn of Amsterdam bent.

Check de EXCLUSIEVE EIGEN WONINGWEBSITE (alidabuitendijkerf5.nl) voor meer informatie over de woning en de omgeving via de site van EV Wonen Makelaardij.

BEZICHTIGING: Vraag snel een bezichtiging aan via Funda of via de website van EV Wonen Makelaardij. We laten deze unieke woning graag aan je zien.

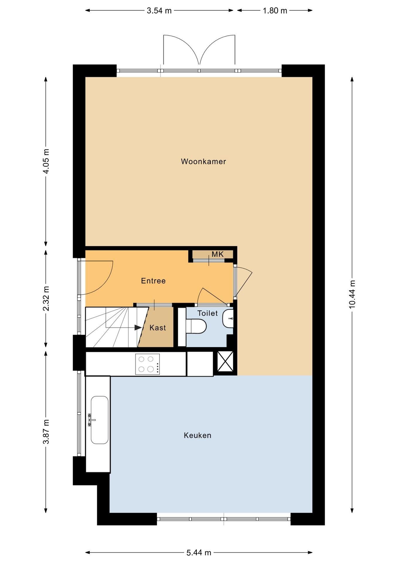
Indeling:

BEGANE GROND:
De lichte woonkamer met een hoog plafond (2,73 m) en openslaande deuren naar de tuin is een fijne plek om samen te komen. De massief eiken vloer en nette afwerking geven de ruimte veel sfeer. De royale woonkeuken (ca. 21 m²) ligt aan de voorzijde, is voorzien van elektrische vloerverwarming en beschikt over alle benodigde apparatuur: inductiekookplaat, oven, koel-vriescombinatie, afzuigkap, vaatwasser, dubbele spoelbak, draaicarrousel en volop kastruimte.

1e VERDIEPING:
Op de eerste verdieping bevinden zich drie slaapkamers, allen goed van formaat. De overloop is licht dankzij twee ramen en afgewerkt met marmoleumvloer en spachtelwanden. De ruime badkamer beschikt over een ligbad, inloopdouche, toilet, wastafelmeubel en mechanische ventilatie.

2e VERDIEPING:
De tweede verdieping biedt een vierde slaapkamer met een fraaie ronde dakkapel en een hoge nok, waardoor de ruimte heerlijk licht en luchtig aanvoelt. Op de voorzolder bevinden zich de wasmachineaansluiting en een aparte bergingskast met de cv-installatie (Intergas combiketel 2015), mechanische ventilatie en hete-luchtverwarming. Dankzij de hoge nok is er bovendien de mogelijkheid om een vliering te realiseren.

BUITENRUIMTE & TUIN:
De fraai aangelegde tuin biedt veel privacy en ruimte. In de achtertuin een heerlijke pruimenboom en voldoende ruimte aangezien de tuin maar liefst 15 meter diep en 12 meter breed is, ideaal voor kinderen om te spelen of om met familie en vrienden te genieten van zonnige dagen. Aan de voorzijde een fraaie appelboom en een eigen oprit met parkeergelegenheid voor twee auto’s.

GARAGE:
De aangebouwde garage is voorzien van elektra en biedt volop bergruimte. Er is bovendien de mogelijkheid om een vliering te realiseren voor extra opslag.

BIJZONDERHEDEN:
- Woonoppervlak ca. 151 m², perceel 280 m²
- Bouwjaar 2003
- Energielabel A, volledig geïsoleerd
- Vier slaapkamers
- Grote woonkeuken met vloerverwarming
- Royale woonkamer met hoog plafond en openslaande deuren
- Badkamer met ligbad en douche
- Garage met oprit voor twee auto’s
- Cv-ketel Intergas (2015, eigendom)
- Hete-luchtverwarming (2015) aanwezig
- Ronde dakkapel op de tweede verdieping
- Veel privacy in huis en tuin
- Autoluwe en kindvriendelijke wijk

Aanvaarding: in overleg

Een instapklare, energiezuinige gezinswoning met volop ruimte en comfort, gelegen op een heerlijke plek in Heerhugowaard. Maak snel een afspraak voor een bezichtiging, wij laten deze fijne woning met plezier aan je zien! Lees de volledige omschrijving

Plattegronden

Overdracht

Vraagprijs
€ 625.000 k.k.
Status
Verkocht

Bouw

Object type
Eengezinswoning, 2-onder-1-kapwoning
Soort bouw
Bestaande bouw
Bouwjaar
2003
Soort dak
Zadeldak bedekt met pannen

Oppervlakte en inhoud

Woonoppervlakte
151 m²
Perceeloppervlakte
325 m²
Inhoud
535 m³
Externe bergruimte
22 m²

Indeling

Aantal kamers
5 kamers (4 slaapkamers)
Aantal badkamers
1 badkamer en 1 apart toilet
Badkamervoorzieningen
Douche, ligbad, toilet, en wastafel
Aantal woonlagen
3 woonlagen
Voorzieningen
Mechanische ventilatie en TV kabel

Energie

Energielabel
A
Energielabel registratie
03-09-2025
Isolatie
Dakisolatie, dubbel glas, muurisolatie en vloerisolatie
Verwarming
Heteluchtverwarming en gedeeltelijke vloerverwarming
Warm water
Cv-ketel

Buitenruimte

Ligging
Aan rustige weg en in woonwijk
Tuin
Achtertuin en voortuin
Afmetingen achtertuin
180 m² (15,00 meter diep en 12,00 meter breed)
ligging tuin
Gelegen op het noordoosten bereikbaar via achterom

Garage

Soort garage
Vrijstaande stenen garage
Capaciteit
1 auto
Voorzieningen
Elektra en stromend stromend water

Parkeergelegenheid

Soort parkeergelegenheid
Op eigen terrein en openbaar parkeren

Energieverbruik in Heerhugowaard

Energielabel deze woning

Energielabel A

Publicatie energielabel: 03-09-2025

Stroomverbruik per jaar

3430 kWh

(Gemiddelde twee onder een kap in Heerhugowaard)

Gasverbruik per jaar

1170 m³

(Gemiddelde twee onder een kap in Heerhugowaard)

* Cijfers zijn afkomstig van het CBS en bedoeld als indicatie en kunnen verschillen voor deze woning

Indicatie hypotheeklasten

Eigen inleg:
Spaargeld / overwaarde

Rente:
Laagste 10-jaars rente

Laagste 10-jaars rente

2,98% - Centraal Beheer Groen... - NHG


3,25% - Centraal Beheer Groen... - 80%

Laagste 20-jaars rente

3,29% - Centraal Beheer Groen... - NHG


3,52% - Centraal Beheer Groen... - 80%

Laagste 30-jaars rente

3,41% - Centraal Beheer Groen... - NHG


3,74% - Centraal Beheer Groen... - 80%


Hypotheek:

Bruto maandlasten: € 0 p/m

Netto maandlasten: € 0 p/m

Hoe berekenen we dit?

Het rentepercentage is gebaseerd op de laagste 10 jaars vaste rente voor één hypotheekdeel. De vermelde rente (3.25% zonder NHG) is gecontroleerd op 06-01-2026. Deze berekening is gebaseerd op een annuïteitenhypotheek die volledig wordt afgelost, waarbij de maandlasten gedurende de gehele looptijd gelijk blijven. De werkelijke rente en netto maandlasten kunnen variëren, afhankelijk van uw persoonlijke situatie en de hypotheekverstrekker. Raadpleeg een financieel adviseur voor een nauwkeurige berekening en advies. Aan deze berekening kunnen geen rechten worden ontleend; het dient enkel als indicatie.

Documentatie

Kadastrale kaart

Leefomgeving

Brochure woning

BAG uittreksel

Lijst van zaken

WOZ waarderapport

Plattegronden PDF

Bezoek onze website

Zonnegrenzen bekijken

Op de kaart

Inwoners in Heerhugowaard

Cijfers voor postcodegebied 1705

Totaal aantal inwoners
59045 inwoners
Mannen
51%
Vrouwen
49%

Inwoners in Heerhugowaard

Cijfers voor postcodegebied 1705

tot 15 jaar
17%
15 tot 25 jaar
13%
25 tot 35 jaar
25%
45 tot 65 jaar
27%
65 en ouder
18%

Huishoudens in Heerhugowaard

Cijfers voor postcodegebied 1705

Eenpersoons zonder kinderen
27%
Meerpersoons zonder kinderen
23%
Huishoudens zonder kinderen
50%

Huishoudens in Heerhugowaard

Cijfers voor postcodegebied 1705

Huishoudens met één kind
9%
Huishoudens met meerdere kinderen
41%
Huishoudens met kinderen
50%

Woningen in Heerhugowaard

Cijfers voor postcodegebied 1705

Woningen voor 1945
1%
Woningen tussen 1945 en 1965
1%
Woningen tussen 1965 en 1975
1%
Woningen tussen 1975 en 1985
1%
Woningen tussen 1985 en 1995
1%

Woningen in Heerhugowaard

Cijfers voor postcodegebied 1705

Woningen tussen 1995 en 2005
69%
Woningen tussen 2005 en 2015
28%
Woningen na 2015
2%
Huurwoningen
30%
Koopwoningen
70%

Overige in Heerhugowaard

Cijfers voor postcodegebied 1705

Gemiddelde WOZ waarde
€ 264.000,-
Personen onder de 65 met uitkering
7%

Overige in Heerhugowaard

Cijfers voor postcodegebied 1705

Adressen per km²
1752
Stedelijkheid (schaal 1 op 5)
80%
Postcode kaart 1705 Gemeente kaart dijk en waard

Korte feiten over Heerhugowaard

Heerhugowaard is een plaats in de gemeente Dijk en Waard, in de regio West-Friesland in de Nederlandse provincie Noord-Holland. Heerhugowaard hoort historisch gezien niet bij Kennemerland maar valt wel onder de gemeentelijke samenwerkingsregio Kennemerland via Noord-Kennemerland.

Indien u vragen heeft of u wilt een bezichtiging inplannen, dan kunt u gebruik maken van het formulier hiernaast. Er zal daarna op korte termijn contact met u worden opgenomen.

Rustenburgerweg 88

1703 RZ, Heerhugowaard

06 - 408 720 42 info@evwonen.nl www.evwonen.nl

Wie is EV Wonen Makelaardij?

Het verlaten van je oude woning of het ontdekken van je nieuwe droomhuis is een ongelooflijk opwindend proces voor de meeste van onze klanten. Er zijn zoveel besluiten te nemen en talloze factoren die invloed hebben op het behalen van het best mogelijke resultaat voor jou. Bovendien is de vraag naar woningen sterk gestegen en hebben de prijzen recordhoogtes bereikt.

In deze dynamische en vaak onvoorspelbare markt zijn wij de toonaangevende verkoopmakelaar in de regio, goed geïnformeerd over de lokale huizenmarkt en de verkoopmogelijkheden van jouw woning.

We hebben voor veel klanten uitstekende verkoop- of aankoopresultaten behaald. Wij volgen geen vaste methoden, omdat we geloven dat elke woning en verkoper uniek is. Bij ons kun je rekenen op een persoonlijke benadering. Ons succesgeheim is dat we alledaagse dingen buitengewoon goed uitvoeren.

Een huis met succes verkopen is geen eenvoudige taak. EV Wonen Makelaardij biedt:

– een solide verkoopstrategie;

– een eersteklas presentatie met altijd een toppositie op Funda;

– een gedreven en gecertificeerde Register Makelaar/Taxateur;

– proactief gebruik van sociale media;

– en een flinke portie lokale marktkennis.

Onze aanpak heeft de afgelopen jaren geleid tot een zeer hoge Funda klantbeoordeling van 9,5! Dit betekent dat klanten met een goed verkoopproces uitstekende verkoopresultaten hebben behaald.

We besteden veel aandacht aan jouw persoonlijke situatie en de specifieke kenmerken van jouw woning. Dit, in combinatie met een goede communicatie, garandeert een succesvol verkoop- of aankooptraject. Benieuwd wat we voor jou kunnen doen? We komen graag vrijblijvend langs voor advies op maat.

Naast Heerhugowaard zijn we ook actief als makelaar in Alkmaar, Oterleek, Langedijk, Hensbroek, Obdam en omgeving.

Wij kunnen je op een unieke en persoonlijke manier volledig ontzorgen als verkoopmakelaar of aankoopmakelaar bij de verkoop of aankoop van jouw woning.

Wie is EV Wonen Makelaardij?
Reviews EV Wonen Makelaardij

Alida Buitendijk erf 5, Heerhugowaard

€ 625.000 k.k. - Verkocht

Helaas, deze woning is verkocht!

Net te laat, deze woning is al verkocht. Laat een zoekopdracht bij ons achter zodat wij u direct kunnen helpen wanneer er nieuw aanbod beschikbaar komt.